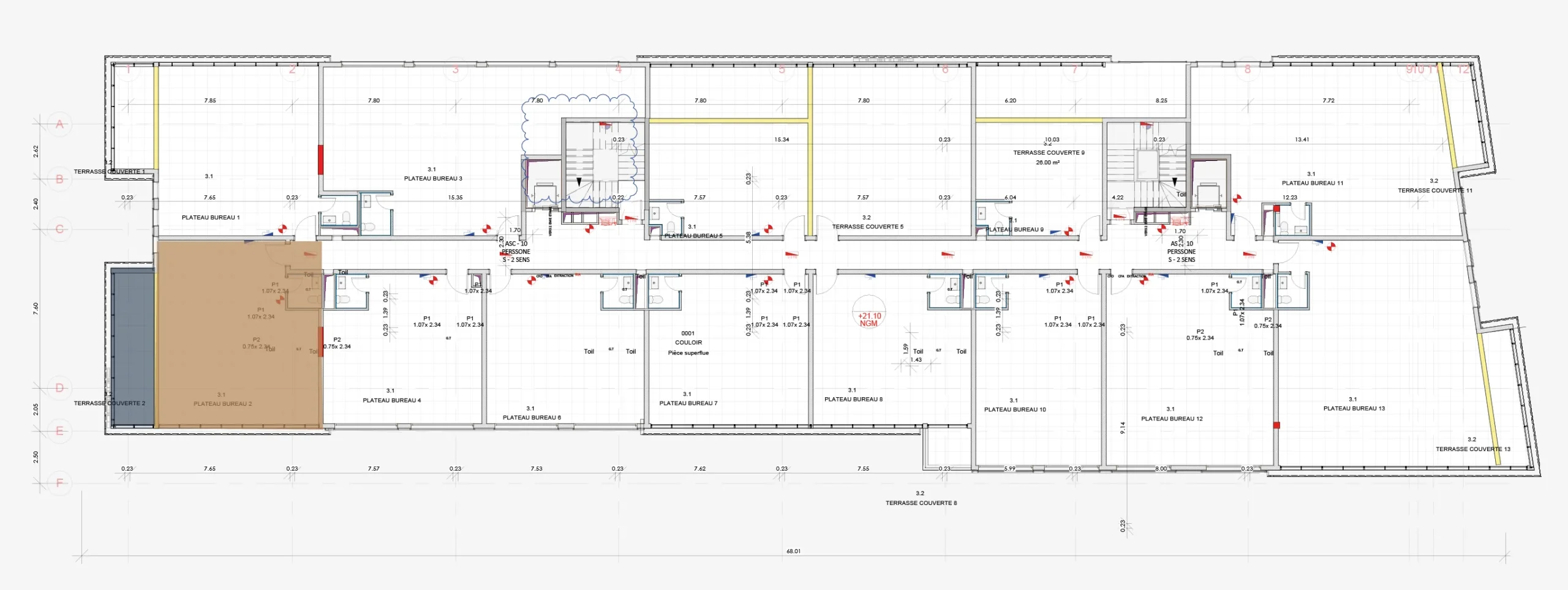
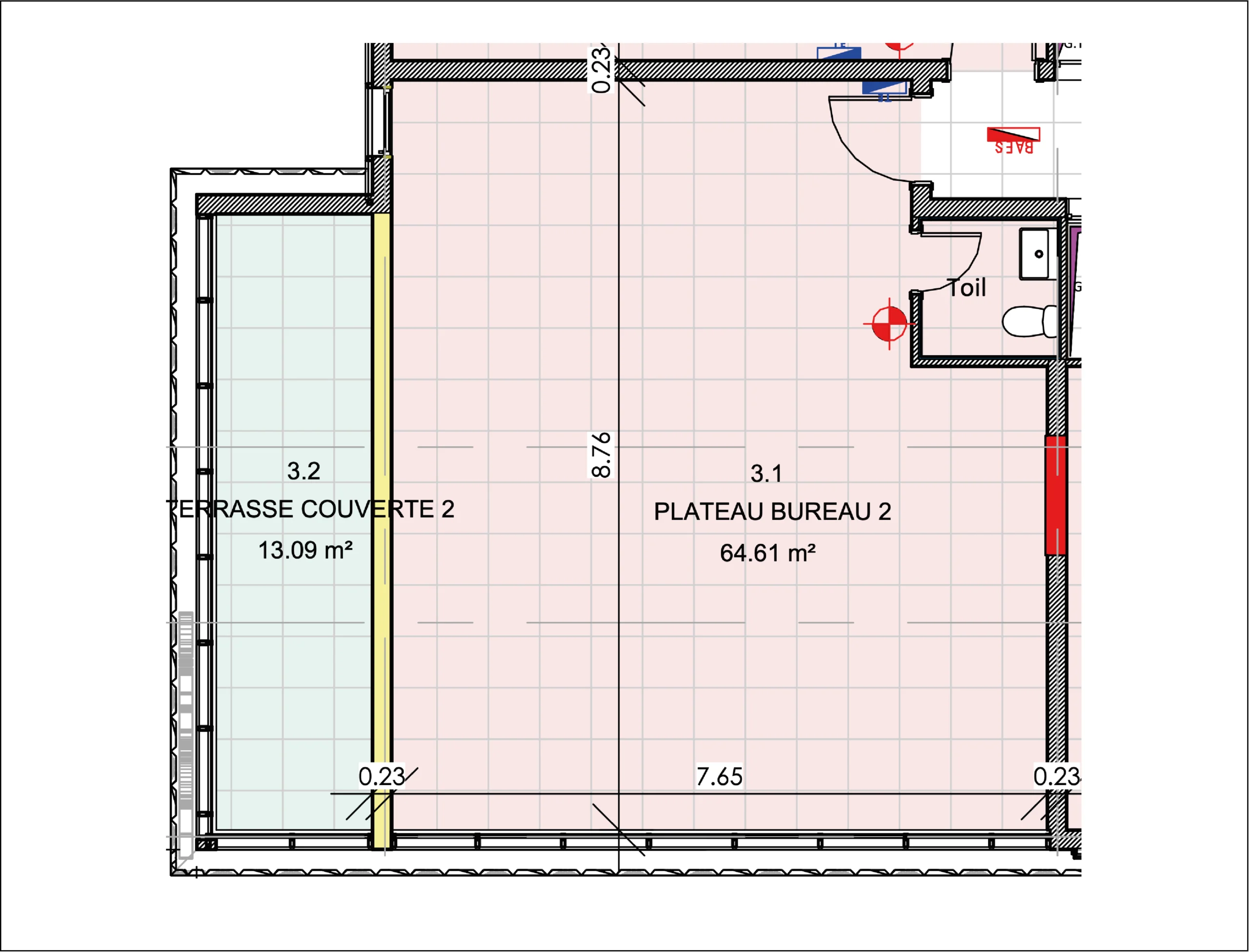
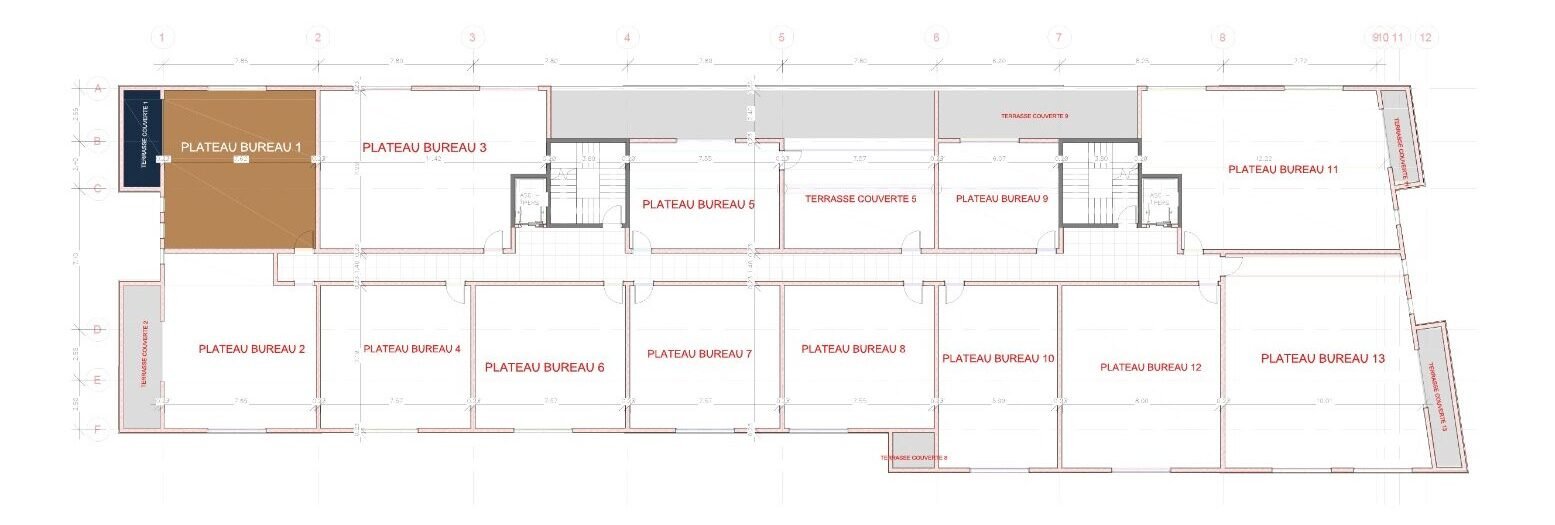
PLATEAU BUREAU 2

nous proposons

Informations

Surface totale 0
surface intérieure
0
Surface intérieure
surface terrasse
0
Surface terrasse
(couverte)
Bloqué

plan de repérage ( 1er étage)

équipements

Climatisation

Parking sous-sol

Ascenseur

Espace détente commun

Caméra de surveillance

Salle de prière

Diffuseur parfum

Contrôle d’accès digitalisé

USB-C zone commune

Wi-fi haute performance

Réseau 5G backup

Plan de masse

Le projet Riviera Office se structure autour d’un ensemble mixte regroupant plateaux bureaux, commerces et espaces de services, répartis de manière équilibrée afin de créer un pôle fonctionnel à forte valeur ajoutée.

Les plateaux bureaux, d’une superficie allant de 26 m2 à 104 m2, répondent aux besoins des professionnels et entreprises de toutes tailles.

Les locaux commerciaux, proposés entre 60 m2 et 262 m2, bénéficient quant à eux d’une visibilité optimale sur la Route d’Azzemour, garantissant attractivité et accessibilité pour diverses activités.

Sélection similaire