Informations
Bloqué
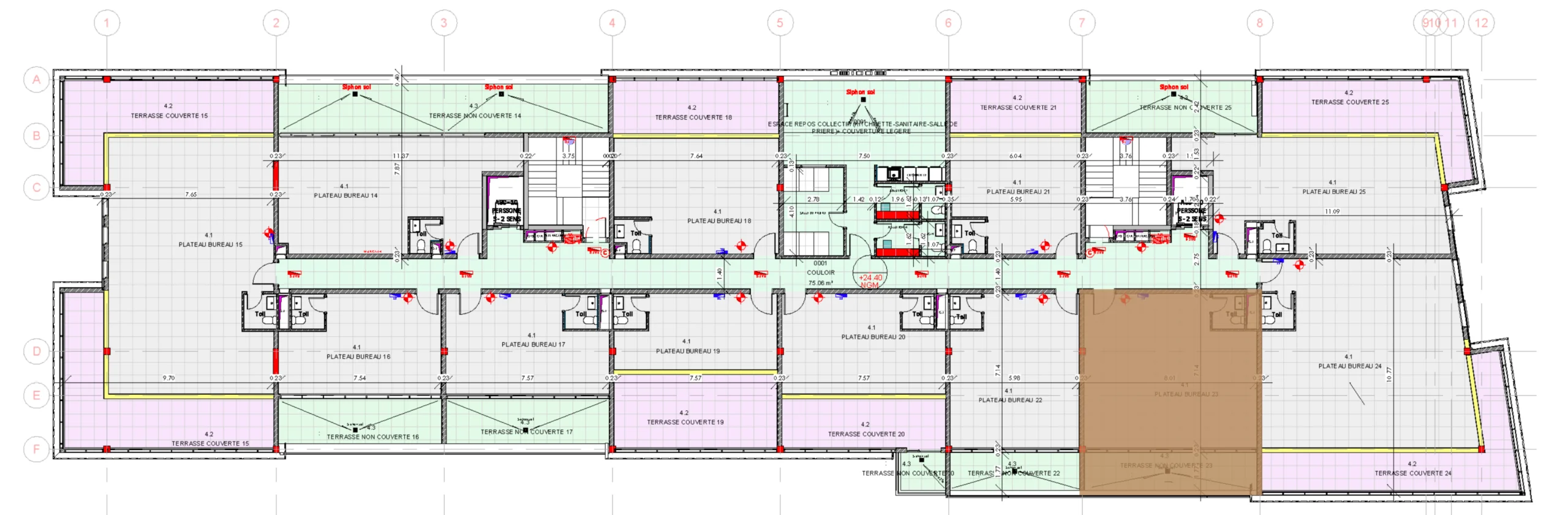
plan de repérage ( 2eme étage)
Climatisation
Parking sous-sol
Ascenseur
Espace détente commun
Caméra de surveillance
Salle de prière
Diffuseur parfum
Contrôle d’accès digitalisé
USB-C zone commune
Wi-fi haute performance
Réseau 5G backup
Plan de masse
Le projet Riviera Office se structure autour d’un ensemble mixte regroupant plateaux bureaux, commerces et espaces de services, répartis de manière équilibrée afin de créer un pôle fonctionnel à forte valeur ajoutée.
Les plateaux bureaux, d’une superficie allant de 26 m2 à 104 m2, répondent aux besoins des professionnels et entreprises de toutes tailles.
Les locaux commerciaux, proposés entre 60 m2 et 262 m2, bénéficient quant à eux d’une visibilité optimale sur la Route d’Azzemour, garantissant attractivité et accessibilité pour diverses activités.

