Informations
Surface totale
0
m²
0
m²
Surface intérieure
0
m²
Surface terrasse
(Non couverte)
(Non couverte)
Bloqué
équipements
Climatisation
Parking sous-sol
Ascenseur
Espace détente commun
Caméra de surveillance
Salle de prière
Diffuseur parfum
Contrôle d’accès digitalisé
USB-C zone commune
Wi-fi haute performance
Réseau 5G backup
Plan de masse
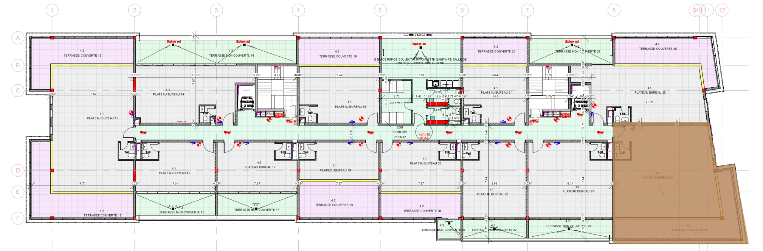
Le projet Riviera Office se structure autour d’un ensemble mixte regroupant plateaux bureaux, commerces et espaces de services, répartis de manière équilibrée afin de créer un pôle fonctionnel à forte valeur ajoutée.
Les plateaux bureaux, d’une superficie allant de 26 m2 à 104 m2, répondent aux besoins des professionnels et entreprises de toutes tailles.
Les locaux commerciaux, proposés entre 60 m2 et 262 m2, bénéficient quant à eux d’une visibilité optimale sur la Route d’Azzemour, garantissant attractivité et accessibilité pour diverses activités.

